Eaton Park Gamuda Land

Eaton Park Gamuda Land

Dự án Eaton Park của Gamuda Land tại Mặt Tiền Mai Chí Thọ, An Phú, Tp Thủ Đức, trước đây thuộc Quận 2 của TP Hồ Chí Minh. Là một dự án căn hộ hạng sang được phát triển sau một giao dịch M&A (Mergers and Acquisitions – Hợp nhất và Mua lại) với Công Ty Bất động sản Tâm Lực. Quy mô dự án Eaton Park với tổng điện tích hơn 36.800m2, và dự kiến cung ứng ra thị trường căn hộ quận 2 khoảng 2.000 căn hộ cao cấp, Với 2 phân khu chính tổng cộng 6 toà tháp cao từ 29 – 39 tầng.

Dự án căn hộ Eaton Park Mai Chí Thọ thật sự hứa hẹn mang lại không gian sống đẳng cấp và tiện nghi cho cư dân. Sự kết hợp giữa vị trí thuận lợi, quy mô lớn, và phong cách sống hiện đại có thể thu hút nhiều người mua nhà và cư dân mong muốn tận hưởng cuộc sống hiện đại cao cấp tại khu vực Thủ Đức. Dự án này có tiềm năng cung cấp nhiều tiện ích và dịch vụ đẳng cấp, giúp đảm bảo cuộc sống thoải mái và tiện nghi cho cư dân, nơi có tiềm năng phát triển lớn và tiếp cận dễ dàng đến các khu vực lân cận.

Tổng Quan Dự Án Eaton Park

  • Tên dự án: Eaton Park
  • Vị trí: Mai Chí Thọ, An Phú, Tp. Thủ Đức, Thành phố Hồ Chí Minh.
  • Chủ Đầu Tư: Gamuda Land
  • Phân Phối: Song Điền Land
  • Tổng diện tích: 3,68 ha
  • Mật độ xây dựng: 40%
  • Dự Án Quy hoạch gồm: Tổ hợp chung cư cao cấp, thương mại, dịch vụ
  • Tầng hầm: 02 hầm
  • Chiều cao Khối tháp: 27 -39 tầng
  • Số lượng: 1.968 căn hộ, 12 căn penthouse, 51 căn shop khối đế và 21 căn shophouse.
  • Phân Khu Dự Án: Khu K1, Khu K2 Tổng Gồm 6 Toà Tháp.
  • Phân Khu K1 : Gồm 4 tháp (A1, A2, A3, A4 )
    • Tầng 1-2: 15 Căn shophouse
    • Tháp A1 : Cao 38 tầng, Tổng 338 căn hộ (9 căn/tầng)
    • Tháp A2 : Cao 29 tầng, Tổng 276 căn hộ (10 căn/tầng)
    • Tháp A3 : Cao 29 tầng, Tổng 347 căn hộ (13 căn/tầng)
    • Tháp A4 : Cao 39 tầng, Tổng 347 căn hộ (9 căn/tầng)
  • Phân Khu K2 : Gồm 2 tháp (A5, A6)
    • Tầng 1-2: 5 Căn shophouse
    • Tháp A5: Cao 39 tầng, Tổng 346 căn hộ (9 căn/tầng)
    • Tháp A6: Cao 37 tầng, Tổng 326 căn hộ (9 căn/tầng)
  • Diện tích:
    + 1 PN diện tích 46m2
    + 2 PN diện tích 69-70m2
    + 3 PN diện tích 97m2
    + Dupplex và duel key diện tích 105m2
    + Penhouse diện tích 196m2
  • Pháp lý: Đã có GPXD phần móng, QĐ 1/500
  • Lộ trình bán hàng: Dự kiến tháng 12 Kick Off sales và công bố đại lý chính thức.
  • Dự kiến bàn giao: Quý 2/2026
  • Căn Hộ Đang Bán Khác: FIATO Premier Thủ Đức

Vị trí dự án Eaton Park

​Dự án Eaton Park Quận 2 toạ lạc tại số 164A Đường Mai Chí Thọ, An Phú, TP.Thủ Đức, Hồ Chí Minh. Vị trí Eaton Park có giá trị ví như viên Kím Cương quý hiếm còn xót lại tại trung tâm Quận 2, thành phố Hồ Chí Minh. Với sự thuận lợi của việc có mặt trên tuyến đường huyết mạch, Cư dân dễ dàng di chuyển đến các tuyến đường liên kết vùng thuận tiện như: Cao tốc Long Thành – Dầu Giây đi Nhơn Trạch, Đồng Nai, Vũng Tàu, Phan Thiết nhanh chóng..

Ngoài ra, với vị trí thuận lợi như vậy, cư dân Eaton Park Quận 2 có thể hưởng lợi từ nhiều tiện ích xã hội, mua sắm và giáo dục trong khu vực, tạo ra một môi trường sống hiện đại và tiện nghi. Sự gần gũi với các tiện ích và cơ sở hạ tầng cao cấp của trung tâm hành Chính Thủ Thiêm, Quận 2 giúp tạo ra một môi trường thuận lợi cho việc sinh hoạt hàng ngày của cư dân mà còn tăng giá trị cho dự án. Các tiện ích nội khu và khả năng hòa mình vào lối sống đa dạng của khu vực là những điểm mạnh khác biệt của dự án.

Tiện ích Căn Hộ Eaton Park

Tiện ích Nội Khu

Dự án căn hộ Eaton Park Quận 2 không chỉ chú trọng đến việc cung cấp những căn hộ hạng sang chất lượng mà còn đầu tư đầy đủ vào các tiện ích nội khu để tạo ra một môi trường sống cao cấp và hiện đại.

  • Khu trung tâm thương mại
  • Hồ bơi vô cực & Sky Bar
  • Khu Nhà hàng & BBQ
  • Khu vui chơi trẻ em
  • Khu Gym & Spa

Tiện ích Ngoại Khu

  • Khu vực xung quanh Dự Án Eaton Park Thủ Đức có sẵn nhiều tiện ích hiện đại, bao gồm trường học từ mầm non đến trung học, trung tâm thương mại, bệnh viện, và khu vui chơi giải trí,..
  • Trung tâm hành chính Quận 2
  • Cách khu đô thị Thủ Thiêm, UBND quận 2, bệnh viện quận 2 chỉ trong 5 phút đi xe
  •  Trường Quốc Tế như The American School (TAS), Australian International School, British International School (BIS)
  • Các trung tâm thương mại như Cantavil, The Estella, The Vista, siêu thị Mega, siêu thị Big C
  • Khu liên hợp TDTT quốc gia Rạch Chiếc,…

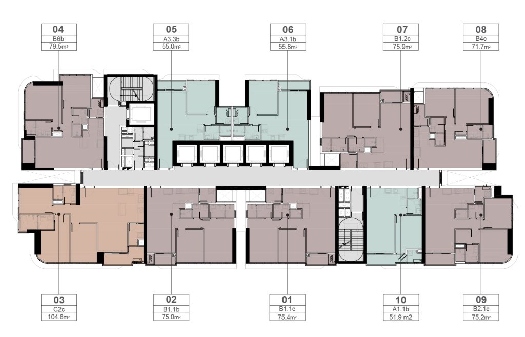
Mặt bằng dự án Eaton Park Gamuda Land

Dự án Eaton Park không chỉ đơn thuần là 1 dự án căn hộ mà còn là một tác phẩm quy hoạch tinh tế, sáng tạo để tạo ra một khu đô thị hiện đại và tiện nghi. Với diện tích đất ở chiếm tỷ lệ quan trọng, dự án này tận dụng mỗi mét vuông để tạo ra các khu vực đa dạng, đáp ứng đầy đủ các nhu cầu của cư dân. Trung tâm thương mại, khu nhà ở cao tầng kết hợp thương mại được phân bổ một cách cân đối, tạo ra một khu vực sống động và phát triển.

Phần diện tích còn lại được quy hoạch thông minh cho các tiện ích như đất giao thông, cây xanh, kênh rạch, và hạ tầng kỹ thuật, tạo nên một môi trường sống không chỉ hiện đại mà còn đầy đủ và thoải mái.

Hạng mục chính của dự án với 2 toà nhà và tổng cộng 2.000 căn hộ, chia thành khối K1 và K2, đại diện cho sự đa dạng và sự lựa chọn cho cư dân. Với khối tháp từ 29 đến 39 tầng, Eaton Park mở ra tầm nhìn độc đáo từ căn hộ ở mọi tầng, tận dụng không gian xung quanh một cách tối ưu.

Nhà mẫu căn hộ Eaton Park

Không gian cá tính

Căn hộ mẫu Eaton Park với phong cách thiết kế  hiện đại, phối cảnh nội thất cá tính, độc đáo và đầy màu sắc tạo ra một bức tranh sống động và tràn ngập năng lượng tích cực.

Sự hài hoà màu sắc

Tại căn hộ mẫu Eaton Park, sự kết hợp độc đáo giữa nghệ thuật và thiết kế nội thất tạo nên một không gian sống phong cách và đậm chất cá nhân. Các bức tranh vẽ, họa tiết trên tường, và phụ kiện nội thất được tỉ mỉ chọn lựa, không chỉ tạo nên điểm nhấn nghệ thuật mà còn phản ánh sự đổi mới và sáng tạo. Màu sắc tươi sáng và hình dáng độc đáo của những yếu tố này không chỉ làm cho căn hộ trở nên sống động mà còn tạo nên một không gian sống hiện đại và phản ánh rõ nét cá tính của cư dân.

Thiết kế đẳng cấp

Căn hộ mẫu Eaton Park Mai Chí Thọ không chỉ chú trọng đến sự sang trọng mà còn đảm bảo sự tiện ích và kết nối với môi trường xung quanh. Ban công rộng lớn được tinh tế bố trí, giúp ánh sáng tự nhiên từ bên ngoài tràn vào không gian sống, tạo cảm giác thoải mái và mở rộng không gian sống. Tại Eaton Park, sự kết hợp giữa tiện nghi và vẻ đẹp tự nhiên được chú trọng, tạo nên không gian sống đẳng cấp và hiện đại.

 

Thiết kế mẫu nhà dự án Căn Hộ Eaton Park Quận 2

Giá Bán & thanh toán dự án Eaton Park

Dự án Eaton Park Mai Chí Thọ nằm ở vị trí trung tâm của Quận 2, một trong những khu vực phát triển bật nhất tại Thành phố Hồ Chí Minh. Chủ đầu tư Gamuda Land là một trong những công ty uy tín và có kinh nghiệm trong lĩnh vực bất động sản. Giá bán căn hộ Eaton Park Quận 2 dự kiến từ 5.000 USD/m2 đến 8.000 USD/m2, tuỳ vị trí, diện tích và loại hình căn hộ Eaton Park.

Chủ đầu tư Gamuda Land đầu tư vào các tiện ích và tính năng vượt trội để đáp ứng nhu cầu và kỳ vọng của khách hàng. Các tiện ích và dịch vụ trong dự án bao gồm hồ bơi, phòng tập thể dục, khu vui chơ trẻ em, khu vườn, sân tennis, an ninh 24/7 và nhiều dịch vụ khác. Điều này giúp tạo ra một môi trường sống cao cấp và tiện nghi cho cư dân.

Với mức giá từ 5.000 USD/m2 đến 8.000 USD/m2, dự án Căn Hộ Eaton Park Mai Chí Thọ thể hiện về chất lượng và tiện ích cao cấp, đồng thời thu hút khách hàng mong muốn sống ở một vị trí trung tâm và tận hưởng những lợi ích đẳng cấp của cuộc sống đô thị hiện đại.

Đánh giá bài viết